2026年01月18日時点
| 価格 | 9,600万円 | 管理費等 | - |
|---|---|---|---|
| 住所・最寄り駅 |
東京都杉並区大宮1丁目地図を表示する 京王井の頭線永福町駅 徒歩12分 |
||
| 現行利回り | - | 築年月 | 2019年6月 |
| 満室時利回り | 5.25% | 専有面積 | 114.03㎡設備 |
公営水道
都市ガス
シャワー
給湯
洗濯機置き場
| 住所 | 東京都杉並区大宮1丁目地図を表示する | ||
| 交通機関 | 京王井の頭線永福町駅 徒歩12分 | ||
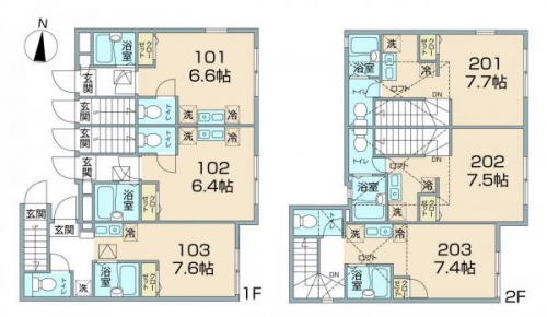
| 間取り | 洋室6.4畳・1階・1室 / 洋室6.6畳・1階・1室 / 洋室7.6畳・1階・1室 / 洋室7.4畳・2階・1室 / 洋室7.5畳・2階・1室 / 洋室7.7畳・2階・1室 | ||
| 満室時利回り | 5.25% | 現行利回り | - |
| 専有面積 | 114.03㎡ | 築年月 | 2019年6月 |
| 接道状況 | 一方 | 建物構造 | 木造 |
| 所在階/階数 | − / 地上2階 | 駐車場 | 無 |
| 総戸数 | 6戸 | 主要採光面 | - |
| バルコニー面積 | 土地面積 | 111.11㎡ 公簿 | |
| 設備・条件 | 公営水道/都市ガス/シャワー/給湯/洗濯機置き場/下水/IHコンロ/一口コンロ/満室賃貸中 | ||
| 土地権利 | 所有権 | セットバック | 11.35㎡ |
| 管理費等 | - | 修繕積立金 | - |
| 私道負担面積 | - | 都市計画 | 市街化区域 |
| 地目 | 宅地 | 用途地域 | |
| 建ぺい率 | 60% | 容積率 | 150% |
| 引渡 | 相談 | 地勢 | |
| エレベーター | なし | 管理 | |
| 現況 | 賃貸中 | 国土法届出 | |
| 取引形態 | 専任媒介 | 物件管理コード | 20260118 |
| 備考・特記事項 | 土地面積計測方式:公簿、土地面積:111.11㎡、容積率:150%、敷地全体面積:111.11㎡、専有面積詳細:17.03㎡~20.99㎡ ※掲載内容と現況が異なる場合は、 現況を優先いたします。 | ||
小学校
杉並区立大宮小学校
距離:約 428 m
中学校
杉並区立大宮中学校
距離:約 648 m
コンビニ
コンビニ
距離:約 189 m
スーパー
スーパー
距離:約 974 m
病院
総合病院
距離:約 1101 m
株式会社東都資産運用第1ユニット |
||
|
住所 : 東京都狛江市東和泉1-6-7 宅建免許番号 : 国土交通大臣(10)第3496号 営業時間:09:00〜18:00 定休日:水曜日 TEL:042-444-8258 | ||
| お問い合わせ | 店舗案内 | |
お気に入りの物件や気になる物件が
あれば、「候補リストに追加」のボタンをクリックして下さい!
候補リストでは物件を比較してご覧頂け一括でお問い合わせ・資料請求ができます。
リロの不動産サイトはこちら
