リロの売買

トップページ > 横浜市金沢区 > 六浦駅 > グローリア初穂湘南六浦

グローリア初穂湘南六浦

  • 外観
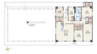
  • 間取

1 / 3 枚

外観

グローリア初穂湘南六浦の物件概要

  • 中古マンション ペットと一緒に暮らせます!(細則有、犬猫3匹まで可) 耐震基準!オートロック!
  • 募集状況:売出中
  • 沿線/最寄駅:京急逗子線/六浦駅
  • 駅からの交通:六浦駅
  • 所在地:横浜市金沢区六浦5丁目
  • 間取り/総戸数:4SLDK/65戸
  • 専有面積/バルコニー面積:143.25㎡/16.8㎡
  • 築年月:1986/5
  • 価格:4,180万円
  • 管理費等:28,700円
物件PRを見る
  • 六浦5丁目の中古マンション。
    京急逗子線 六浦駅 徒歩3分。

    1986年5月築。
    地上10階建て 5階部分です。
    バルコニー付き(16.80㎡)

    [管理形態]
    管理人:日勤
    管理形態:全部委託
    管理組合:有り
    管理会社名:(株)グローリア

    [リフォーム]
    実施年月:2024年9月
    キッチン、浴室、トイレ、クロス張替、床/

    [駐車場]
    駐車場なし

    [周辺環境]
    横浜市立大道小学校まで約1057m
    横浜市立六浦中学校まで約1146m
    コンビニまで約319m
    スーパーまで約805m
    総合病院まで約584m

>> この物件に問い合わせる

>> 候補リストに追加

  • 交通機関:京急逗子線六浦駅 徒歩3分
  • 間取り:4SLDK LDK21畳・5階・1室 / 洋室5畳・5階・1室 / 洋室7畳・5階・1室 / 洋室10.5畳・5階・1室 / 洋室6.2畳・5階・1室 / S4.5畳・5階・1室 
  • 建物構造:SRC(鉄骨鉄筋コンクリート)
  • 所在階/階数:5階 / 地上10階
  • 駐車場:無
  • 総戸数:65戸
  • 主要採光面:南
  • エレベーター:なし
  • バルコニー面積:16.8㎡
  • 土地権利:所有権
  • 修繕積立金:25,190円
  • 用途地域:-
  • 地勢:-
  • 建ぺい率/容積率:- / -
  • 国土法届出:不要
  • 引渡:即時
  • 現況:空家
  • 物件管理コード:00632
  • 管理方式:日勤
  • 取引形態:仲介
  • 備考:オートロック! 広々ルーフバルコニー!/建物面積計測方式:壁芯、掲載確認日:2026年04月17日 ※掲載内容と現況が異なる場合は、 現況を優先いたします。 
  • この物件の設備:公営水道/都市ガス/南向き/駅近/2階以上/下水

>> この物件に問い合わせる

>> 候補リストに追加


グローリア初穂湘南六浦の周辺施設

  • 小学校 横浜市立大道小学校

    距離:約 1057 m
  • 中学校 横浜市立六浦中学校

    距離:約 1146 m
  • コンビニ コンビニ

    距離:約 319 m
  • スーパー スーパー

    距離:約 805 m
  • 病院 総合病院

    距離:約 584 m

ページトップへ

株式会社東都資産運用第1ユニット